PFK to przemysłowe wentylatory kanałowe dedykowane do kanałów prostokątnych. Wentylatory serii PFK zostały stworzone z myślą o instalacjach, w których jest wymagana duża wydajność i cicha praca wentylatora.
Cena od:
5199.21
zł
4227.00 zł netto
* towar dostępny na indywidualne zamówienie.
INDYWIDUALNE RABATY DOTYCZĄCE WYBRANYCH PRODUKTÓW NA ZAPYTANIE! Infolinia: +48 690 912 711
- Parametry
- Opis
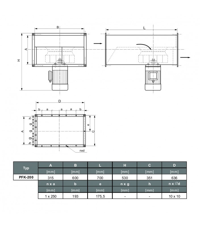
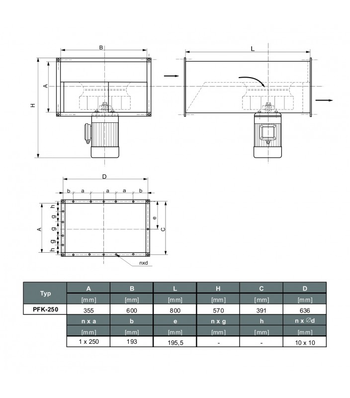
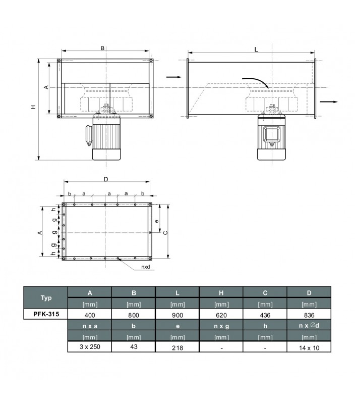
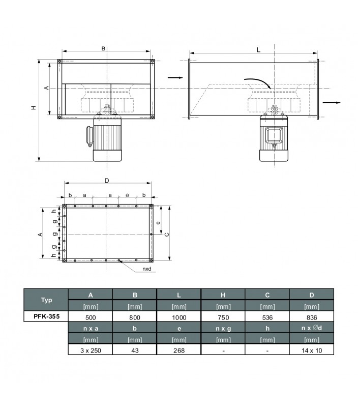
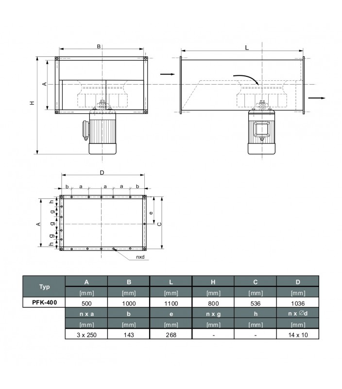
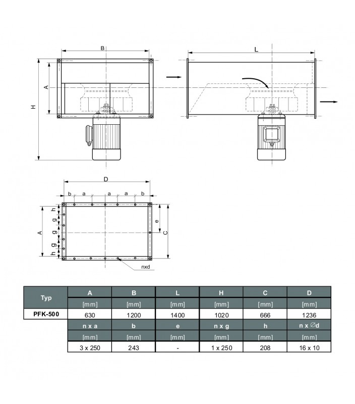
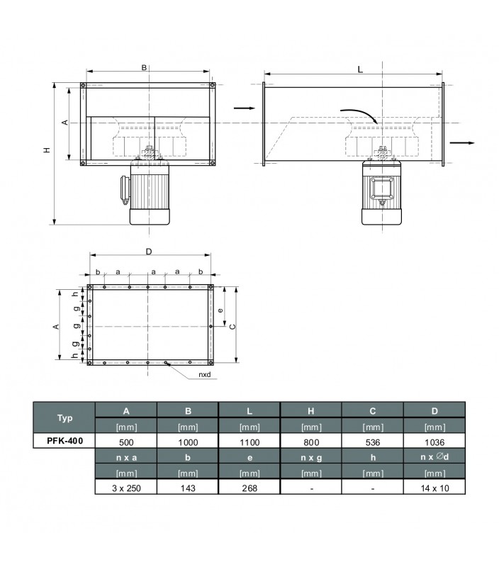
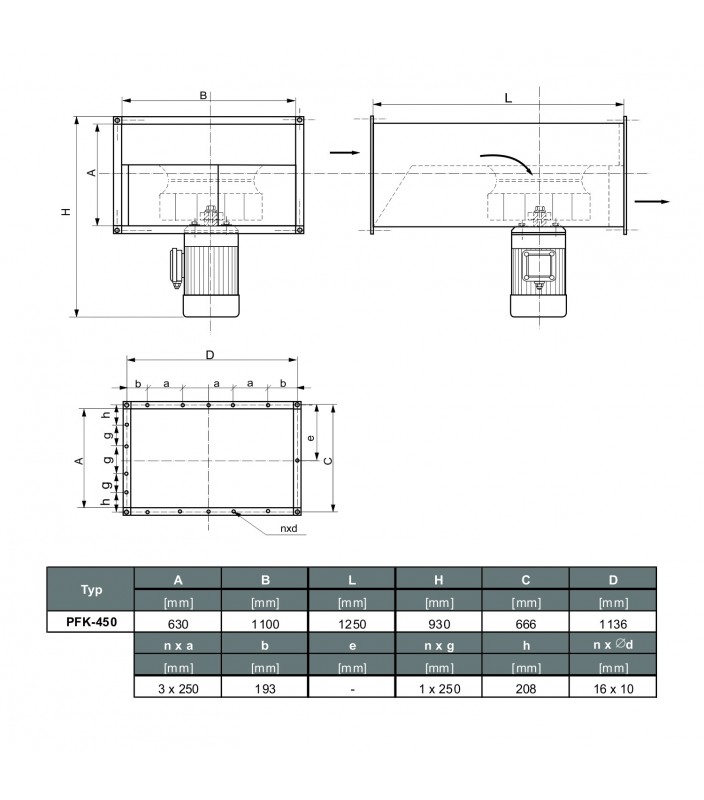
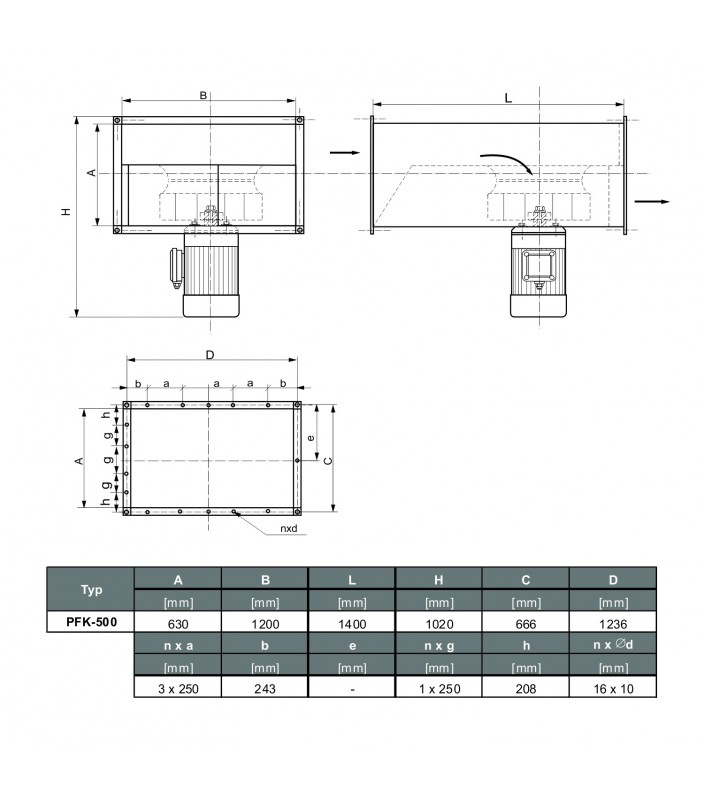
- Wymiary
- Dane techniczne podstawowe
- Do pobrania
PFK to przemysłowe wentylatory kanałowe dedykowane do kanałów prostokątnych. Wentylatory serii PFK zostały stworzone z myślą o instalacjach, w których jest wymagana duża wydajność i cicha praca wentylatora. Wentylatory PFK sprawdzają się zarówno jako wentylatory wyciągowe i nawiewne do wentylacji ogólnej np na halach magazynowych, sklepach, budynkach użyteczności publicznej. Dzięki płaskiej konstrukcji z powodzeniem są stosowane w pomieszczeniach o niskiej zabudowie gdzie nie ma możliwości zastosowania kanałów okrągłych w szczególności w garażach podziemnych i niskich halach produkcyjnych.
Co wyróżnia wentylatory PFK?
Przy projektowaniu wentylatora szczególnie zadbano o sprawność. Zastosowano wysokosprawny wirnik promieniowy z łopatkami zagiętymi do tyłu o geometrii dedykowanej do dużych przepływów dzięki czemu wentylatory tej serii charakteryzują się znacznie większą wydajnością w stosunku do mocy silnika w porównaniu do innych rozwiązań dostępnych na rynku. Wszystkie wentylatory PFK posiadają możliwość regulacji obrotów i są dedykowane do przetłaczania powietrza o temperaturze do +60stC.. Na specjalne życzenie klienta Fabryka TYWENT wykonuje również wentylatory promieniowe do pracy w wysokich temperaturach ( do 150 oC).
UWAGA!!
Wszystkie wentylatory muszą być zabezpieczone wyłącznikiem silnikowym
przed przeciążeniem.
Co wyróżnia wentylatory PFK?
- W wentylatorze PFK zastosowano szereg wzmocnień konstrukcyjnych, które zapewniają długoletnią trwałość urządzenia:
- wzmocniony metalowy wirnik, łopatki połączone techniką spawania
- silnik umieszczony poza ciągiem czynnika wyposażony w dodatkowy wentylator chłodzący
- ergonomiczna obudowa przystosowana do montażu to typowych kanałów prostokątnych
- elementy stalowe malowane proszkowo
Przy projektowaniu wentylatora szczególnie zadbano o sprawność. Zastosowano wysokosprawny wirnik promieniowy z łopatkami zagiętymi do tyłu o geometrii dedykowanej do dużych przepływów dzięki czemu wentylatory tej serii charakteryzują się znacznie większą wydajnością w stosunku do mocy silnika w porównaniu do innych rozwiązań dostępnych na rynku. Wszystkie wentylatory PFK posiadają możliwość regulacji obrotów i są dedykowane do przetłaczania powietrza o temperaturze do +60stC.. Na specjalne życzenie klienta Fabryka TYWENT wykonuje również wentylatory promieniowe do pracy w wysokich temperaturach ( do 150 oC).
UWAGA!!
Wszystkie wentylatory muszą być zabezpieczone wyłącznikiem silnikowym
przed przeciążeniem.


































